Επικοινωνήστε μαζί μας
210 444 14 89
aluminium@haufen.gr
Νέο Showroom Αθηνών
Λ. Μαραθώνος 43
19009 Πικέρμι
Επικοινωνήστε μαζί μας
210 444 14 89
aluminium@haufen.gr
Νέο Showroom Αθηνών
Λ. Μαραθώνος 43
19009 Πικέρμι
Interior design is the art and science of enhancing the interiors.
+) 22 256 7890
architecture@hub.com
+) 22 256 7890
architecture@hub.com
Λ. Μαραθώνος 43
19009 Πικέρμι
Τα κουφώματα, ξύλινα ή αλουμινίου, είναι η βασική μας ενασχόληση από το 1958.


Σύστημα αλουμινίου κατάλληλο για βιομηχανικά ή μεγάλα κτήρια
Η δομική στιβαρότητα συνδυάζεται με την προσοχή στη λεπτομέρεια για να δημιουργήσει μια σειρά από παράθυρα ικανά να δημιουργήσουν τον ιδανικό βιότοπό σας, παρουσιάζοντάς σας διαφορετικές λύσεις που μπορούν να προσαρμοστούν σε κάθε στεγαστική σας ανάγκη, από τις πιο δημιουργικές έως τις πιο παραδοσιακές. Οι καθαρές γραμμές ταιριάζουν απόλυτα σε κάθε κατάσταση, προσφέροντας σας όλη την ανθεκτικότητα και την ελαφρότητα του αλουμινίου. Μια σειρά προϊόντων χαμηλής συντήρησης, που χαρακτηρίζεται από πρωτότυπο σχεδιασμό, προορισμένη να διαρκέσει για πάντα. Διαχρονική κομψότητα για μια σειρά από παράθυρα που δεν θα βαρεθείτε ποτέ να κοιτάτε.
Το παράθυρο δεν αφήνει ρεύματα αέρα κατά την προσομοίωση της κλάσης 3, αλλά προσφέρει έναν βαθμό αντίστασης τρεις φορές μεγαλύτερο.
| κλάση | 1 | 2 | 3 | 4 |
| εφαρμοσμένη πίεση | 150Pa | 300Pa | 450Pa | 600Pa |
Αυτή η τιμή υποδεικνύει την ικανότητα ενός κλειστού παραθύρου να αντιστέκεται στον αέρα εάν υποβληθεί σε διαφορά πίεσης μεταξύ του εσωτερικού και του εξωτερικού. Όσο πιο χαμηλοί είναι οι όγκοι αέρα που το διαπερνούν, τόσο πιο ποιοτικό είναι το παράθυρο και οι φλάντζες που το συνθέτουν.
Το παράθυρο δεν αφήνει το νερό να εισέλθει όταν, κατά τη δοκιμή ποιότητας στο προϊόν, προσομοιώνεται μια ταχύτητα ανέμου ικανή να καταστρέψει κτήρια και κατασκευές.
| κλάση | πίεση αέρα (Pa) | ταχύτητα (km/h) |
| 1A | 0 | 0 |
| 2A | 50 | 32.2 |
| 3A | 100 | 45.53 |
| 4A | 150 | 56.67 |
| 5A | 200 | 64.39 |
| 6A | 250 | 72 |
| 7A | 300 | 78.87 |
| 8A | 450 | 96.59 |
| 9A | 600 | 111.54 |
| E750 | 750 | 124 |
| E900 | 900 | 136.6 |
| E1050 | 1050 | 145 |
| E1200 | 1200 | 160 |
| E1350 | 1350 | 165 |
| E1500 | 1500 | 178 |
Χρησιμοποιείται για τη μέτρηση του βαθμού στεγανότητας ενός παραθύρου ή μιας πόρτας. Αυτή η τιμή προκύπτει ψεκάζοντας την επιφάνεια του προϊόντος με νερό και, ταυτόχρονα, υποβάλλοντάς το σε μια διαφορά πίεσης μεταξύ του εξωτερικού και του εσωτερικού για να προσομοιωθούν οι συνθήκες έντονης βροχής και οι ριπές ανέμου.
| παραμόρφωση (1/200) | B1 | B2 | B3 | B4 | B5 | >B5 |
| κλάση | C1 | C2 | C3 | C4 | C5 | C6 |
| εφαρμοσμένη πίεση | 400Pa | 800Pa | 1200Pa | 1500Pa | 2000Pa | >2000Pa |
Αυτή η τιμή υποδεικνύει τον βαθμό αντίστασης στην παραμόρφωση και το τυχαίο άνοιγμα των φύλλων του κουφώματος όταν αυτό υποβάλλεται στον άνεμο. Αυτά τα δεδομένα είναι χρήσιμα για την κατανόηση της ποιότητας των υλικών που χρησιμοποιούνται στην κατασκευή του κουφώματος.
| ηχομόνωση | <= 40 dB | έως 41 dB | έως 42 dB | έως 43 dB | έως 44 dB | έως 45 dB | > 45 dB |
Είναι η τιμή που μετρά τον τρόπο με τον οποίο τα παράθυρα μπορούν να απομονώσουν ακουστικά το οικιακό περιβάλλον από τον εξωτερικό θόρυβο. Η δοκιμή προσομοίωσης που πραγματοποιήθηκε για τον προσδιορισμό αυτής της τιμής αναφέρεται αποκλειστικά στο κούφωμα, το κτήριο στο σύνολό του μπορεί να μην παρέχει την ίδια ηχομονωτική τιμή.







Παράθυρο μονόφυλλο
με ανάκληση

Παράθυρο δίφυλλο
με ανάκληση

Παράθυρο τρίφυλλο
με ανάκληση

Παράθυρο μονόφυλλο
με άνοιγμα προς τα έξω

Παράθυρο δίφυλλο
με άνοιγμα προς τα έξω

Μπαλκονόπορτα
με ανάκληση

Μπαλκονόπορτα δίφυλλη
με ανάκληση

Μπαλκονόπορτα τρίφυλλη
με ανάκληση

Μπαλκονόπορτα

Μπαλκονόπορτα
δίφυλλη

Σταθερό πλαίσιο

Ανακλινόμενο παράθυρο
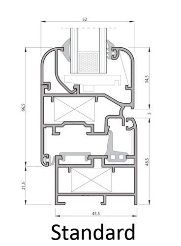
| Window System: | Ponzio WS 45 |
| Description - Περιγραφή: | Basic series Line - Βασική σειρά |
| Tolerances on dimensions Standards - Ανοχές Πρότυπο: | UNI EN 12020-2 |
| Extruded Profile - Εξηλασμένο Αλουμίνιο: | 6060 (UNI 9006/1) |
| Sash Section Basic Dimensions - Διατομή Φύλλου: | 6060 (UNI 9006/1) |
| Double sash central stile thickness Ορατό πάχος στο κέντρο των δίφυλλων: | - |
| Thermal Break - Θερμοδιακοπή: | No Thermal Break - Χωρίς Θερμοδιακοπή |
| Hidden Sash - Κρυφό Φύλλο: | Yes Optional - Κρυφό Φύλλο ως Προαιρετική Επιλογή |
| Glazing - Υάλωση: | Glass Pane 20mm - variable according glass beads |
| Glazing Beads - Τζαμόπηχη: | minimal or rounded cutted in 45° or 90° - ορθογώνια ή πομπέ. |
| Colors - Χρώματα: | POLYCHROM, RAL, ANODIZE, BRUSHED, MARBEL, UBERALL, STAROX |
| Aesthetic lines options - Αισθητικές Γραμμές Προφίλ: | Standard / Piana / Tonda |
| Thermal Performance - Δείκτης Θερμοαγωγιμότητας : (Glazing / Χρήση υαλοπίνακα Ug = 0,6 W/m²K with warm edge). (Values calculated to double sash window W1230xH1480) | - |
| Air Permeability - Αεροπερατότητα: | CLASSE 4 |
| Water Tightness - Υδατοστεγανότητα: | E 900 |
| Soundproof - Δείκτης Hχομείωσης: | 37 - 38 dB |
| Resistance to Wind load - Αντοχή στην Ανεμοπίεση: | C3 / B4 |
Adding {{itemName}} to cart
Added {{itemName}} to cart